当前位置: 首页 > 产品大全 > 某小学三层教学综合楼建筑设计图纸与工业、农业建筑设计资源免费下载解析

某小学三层教学综合楼建筑设计图纸与工业、农业建筑设计资源免费下载解析

某小学三层教学综合楼建筑设计图纸与工业、农业建筑设计资源免费下载解析

在当今教育资源日益受到重视的背景下,优质的校园建筑设计不仅关乎学生的安全与学习环境,也体现了教育理念的现代化发展。本文将重点介绍一份可供免费下载的某小学三层教学综合楼建筑设计图纸,并延伸探讨其与工业、农业建筑设计的异同与资源获取途径,旨在为教育工作者、建筑爱好者及相关行业人士提供参考。

一、 某小学三层教学综合楼建筑设计图纸概览

这份免费提供的建筑设计图纸,通常包含了完整的建筑方案,旨在满足一所小学的基本教学与活动需求。其设计核心通常围绕以下方面展开:

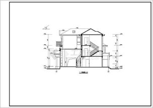
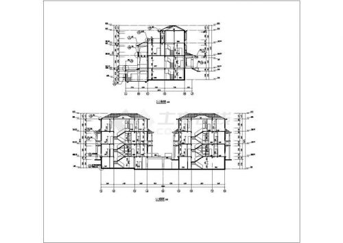
  1. 功能布局:图纸会清晰展示各层平面图。一层通常布置有门厅、行政办公室、部分普通教室以及必要的设备用房;二层和三层则主要分布各类教室(如普通教室、音乐教室、美术教室、计算机室等)、教师办公室以及小型图书馆或阅读区。设计注重教学区与活动区的相对分离,减少干扰。
  2. 安全与规范:严格遵循国家《中小学校设计规范》,注重消防安全疏散通道的设置(如两部疏散楼梯)、走廊宽度、护栏高度等细节。考虑到小学生活泼好动的特点,设计会注重防滑地面、圆角处理等安全措施。
  3. 采光与通风:教室大多南北朝向,窗户设计保证充足的自然采光,并有利于自然通风,营造健康的学习环境。
  4. 造型与空间:建筑外观可能采用简洁明快的现代风格,色彩活泼,符合小学生的心理特点。内部空间注重趣味性和灵活性,可能设计有中庭、共享活动平台等,促进交流。

免费下载价值:这类图纸对于正在规划校园建设的小学、进行课程设计或研究的建筑专业师生、以及希望了解教育建筑特点的个人而言,具有很高的参考和学习价值。它展示了如何将功能、安全、经济与美观结合在一个具体项目中。

二、 工业与农业建筑设计的特点简析

作为建筑领域的另外两个重要分支,工业与农业建筑的设计逻辑与教学建筑有显著不同:

  1. 工业建筑:设计核心是生产流程的效率与安全。建筑布局严格服从生产工艺流程,空间跨度大,层高较高,以满足大型设备安装和物流运输需求。结构上多采用钢结构或预制混凝土,注重荷载计算。对通风、采光(特别是防止眩光的顶部采光)、消防(尤其是针对特定危险品)以及环保(如废水废气处理设施整合)有特殊要求。图纸内容深度往往涉及工艺管线综合布置。
  2. 农业建筑:设计核心是服务于生物生长与农业生产。主要包括温室、畜禽舍、仓库、加工车间等。设计需首要考虑环境控制(如温湿度、光照、通风)、生物安全(防疫隔离)以及作业效率。材料选择注重保温、透光、耐腐蚀。例如,现代化连栋温室的设计图纸会详细体现骨架结构、覆盖材料、遮阳系统、灌溉系统、环控设备等的集成。

三、 不同类型建筑设计资源的获取与学习

无论是教学建筑、工业建筑还是农业建筑,获取优质的设计资源(包括图纸、规范、案例)对于学习和实践都至关重要。

  1. 免费资源平台
  • 教育/政府网站:一些地方教育部门、住建部门或公益组织会公开部分标准校舍或示范项目的设计图纸供参考。
  • 专业论坛与开源社区:国内外一些建筑、工程类的专业论坛和开源设计平台,有时会有从业者或机构分享非商业用途的图纸和技术资料。
  • 高校机构库:部分大学建筑学院的网站或数字图书馆会公开学生的优秀课程设计或研究案例。
  1. 学习与应用建议
  • 对比研究:将小学教学楼图纸与工业、农业建筑图纸进行对比,可以深刻理解“形式追随功能”的设计原则在不同领域的具体体现。
  • 规范先行:在参考任何图纸前,务必先了解并查阅相关的国家及行业设计规范,这是设计的法律和技术基础。
  • 注重实践:图纸是设计的表达,理解其背后的设计意图、计算依据和构造做法更为关键。有条件时应结合实地参观考察。

免费获取的某小学三层教学综合楼建筑设计图纸,是一个了解公共教育建筑设计的宝贵窗口。将其置于更广阔的建筑范畴中,与注重效率的工业建筑、服务生命的农业建筑相比较,有助于我们建立起更全面的建筑学认知。合理利用各类公开的设计资源,遵循规范,深入理解不同建筑类型的内在逻辑,是提升设计能力与行业认知的有效途径。需要提醒的是,下载和使用免费图纸时,务必注意其版权声明和适用范围,用于正式项目时必须由有资质的专业人员进行复核和深化设计。

更新时间:2026-05-30 01:18:07

如若转载,请注明出处:http://www.shizi-arch.com/product/72.html